Планировочные решения
Дано: 3-х комнатная квартира на первом этаже.
Состав семьи: Муж, жена, двое разнополых детей.
Задача: кухня-столовая с большим количеством мест хранения, рабочей зоной мин 600 мм, посудомойкой 600 мм. Сейчас под окном в кухне имеется ниша длиной во всё окно и глубиной 540 мм. Гостиная с диваном и ТВ; большой стол для возможности принимать гостей. Мастер-спальня для родителей с большим шкафом или гардеробной. Комната для сына. Комната для дочери с полуторной кроватью, местом хранения и местом для учебы. Место для работы одного из родителей в ночное время. Прихожая с грязной зоной, местом, где можно не проходя дальше, оставить обувь и повесить одежду 4-х человек + самокат и пр., там не должно быть входов в с/у. Два с/у: один с ванной или душевой, унитазом, раковиной, шкафчиками, полотенцесушителем; второй с унитазом и маленькой раковиной; стиралка в любом месте. Также предусмотреть места для хранения разного вида снаряжения и хозяйственных принадлежностей.
Что сделано: Было предложено несколько вариантов планировок. Остановились на 2-м. В планировке учтены все пожелания клиента, кухня перенесена в гостиную, что дало возможность организовать кухню-столовую -гостиную с возможностью поставить большой стол и принимать гостей, в прихожей организована большая гардеробная, организована мастер-спальня с собственным санузлом, встроенным шкафом и местом для работы. В общей зоне также имеется большой просторный санузел с местами хранения и стиральной машиной. Для детей выделены отдельные комнаты со всем необходимым для учебы и хранения вещей.

Планировка ПОСЛЕ

Дано: Дом 187 кв. м. основной упор на второй этаж.
Состав семьи: Молодая пара без детей.
Задача: организовать пространство для отдыха на втором этаже и две спальни. В комнате отдыха должно быть: бильярд, бар, место с камином, место для большой компании и домашнего кинотеатра с проектором или большим телевизором, полноценный сан.узел. В спальнях места хранения и кровати.
Что сделано: Было предложено изменить конфигурацию первоначальной планировки и перенсти спальни в другое крыло, так как изначально они были очень большими по 17кв.м., а место для отдыха недостаточно для размещения все пожеланий клиента. В итоге спальни были уменьшены до необходимых размеров, в них размещены полноценные гардеробные. За счет этого комната отдыха увеличилась более чем на 10 кв., что позволило удобно разместить все желаемые объекты.

Планировка ПОСЛЕ

Дано: 4-х комнатная квартира на первом этаже.
Состав семьи: Муж, жена, шестеро детей: 4 мальчика, 2 девочки.
Задача: большая кухня, чтобы поместить всю семью, отдельная комната девочек и мальчиков с большим количеством мест хранения. Отдельная спальня для родителей с сан.узлом. Желательно место встречи всей семьи — гостиную.
Что сделано: Было объединено 3 помещения для создания большого просторного пространства для организации кухни, гостиной и столовой, за счет этого удалось поставить большой стол на 8 персон, удобную кухню с островом для завтраков и гостиную зону для просмотра телевизора всей семьей. В прихожей организована вместительная гардеробная и общий санузел. Также удалось создать мастер-спальню с гардеробной и своим санузлом. В комнате девочек на 2х человек также выделено достаточно мест хранения в виде гардеробной, свой санузел и места для занятий. Кровати двухуровневые: нижняя широкая, верхняя односпальная. Комната мальчиков оснащена гардеробной и дополнительными системами хранения у кроватей и над рабочей зоной для 4х человек. Также установлены двухуровневые кровати.


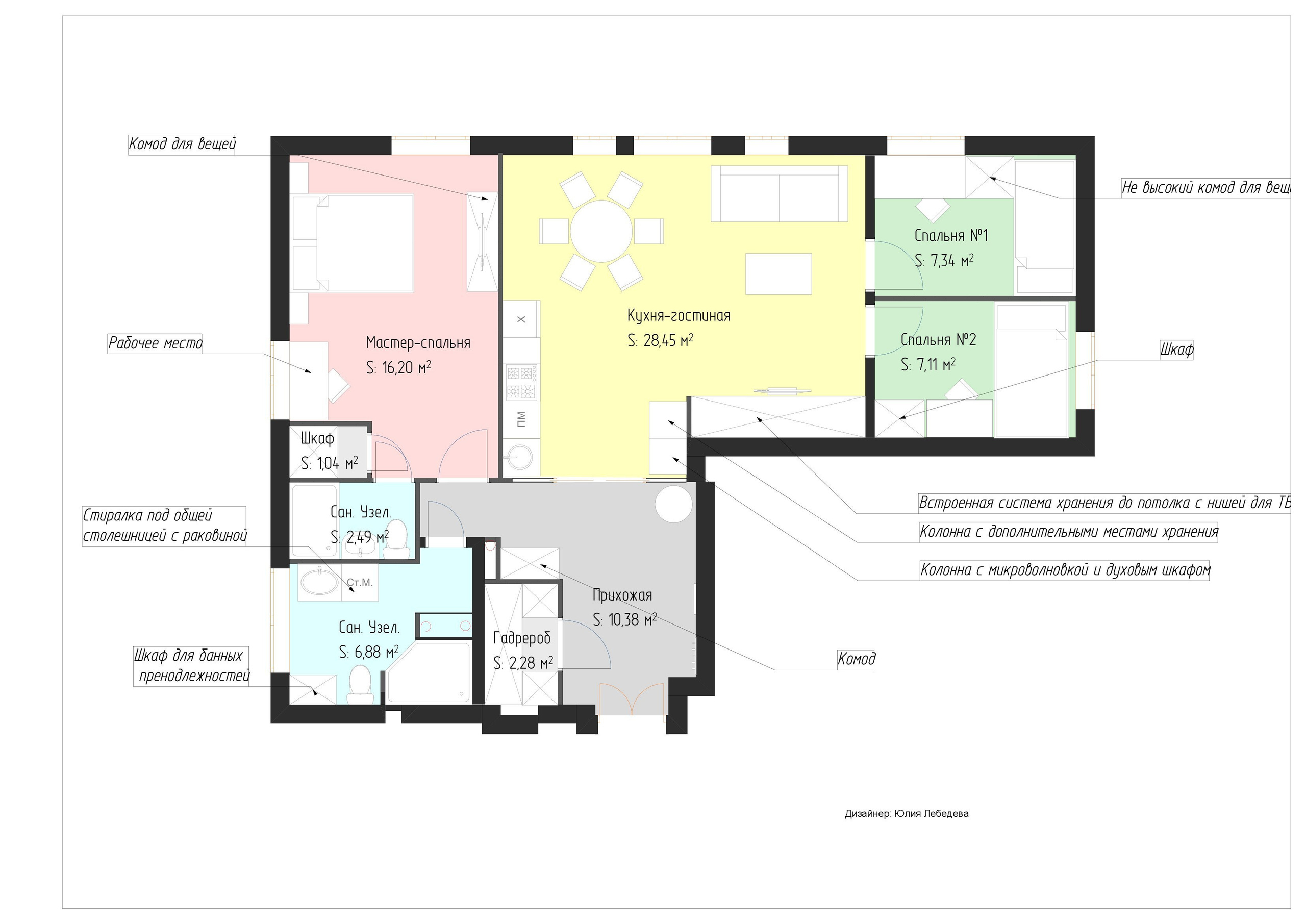
Дано: 3-х комнатная квартира на первом этаже.
Состав семьи: Муж, жена, двое разнополых детей.
Задача: Кухня-гостиная, отдельная спальня для родителей, много мест хранения, отдельная комната девочки и мальчика. Особая задача была избавиться от длинного коридора сквозь всю квартиру. Никаких дополнительных пожеланий больше не было
Что сделано: В итоге было предложено даже больше того, что просил клиент, что вызвало восторг. Кухня была вынесена в коридор, что позволило полностью решить вопрос с бесполезным пространством и создать просторную кухню-гостиную-столовую. Кухня находится в нише за скользящими дверьми, которые легко прячут беспорядок при необходимости. Также были созданы раздельные комнаты для мальчика и для девочки с большим количеством мест хранения. В комнате девочки лоджию присоединили к комнате для создания рабочей зоны. Также удалось организовать прачечную с системами хранения в удаленной зоне, чтобы звуки не мешали никому. И как бонус для родителей была предусмотрена мастер-спальня с своим большим санузлом на две раковины, душем и ванной. Встроенный шкаф и «стенка» для хранения вещей отвечает потребностям клиентов.


Дано: Однокомнатная квартира для пожилой пары.
Состав семьи: Два взрослых человека.
Задача: Организовать кухню-гостиную, отдельную спальню с местом хранения, кабинет и дополнительное спальное место на случай если в гости приедет взрослая дочь.
Что сделано: Конфигурация квартиры полностью изменена для объединения большого пространства под кухню-гостиную-столовую. Кухню и гостиную при этом разделяет небольшой простенок со встроенный камином, который видно-как из гостиной, так и из кухни. В прихожей много пространства чтобы комфортно было одеваться и раздеваться, также предусмотрена большая гардеробная и сан.узел с двумя раковинами. Организована небольшая спальня с выходом на утепленную лоджию, где размещен кабинет для работы и небольшой раскладной диван для дорогих гостей.


Дано: Однокомнатная квартира нестандартной формы
Состав семьи: Молодая девушка
Задача: Создать уютно пространство и скорректировать неправильную геометрию помещения, при этом добавить места хранения. Нужно было разместить диван и кровать с комнате, организовать рабочее место.
Что сделано: В итоге неровные углы в прихожей были скорректированы за счет гардеробных, выделена зона для кухни с выходом на лоджию, где разместился рабочий кабинет. Комната была разделена на две изолированные зоны для спальни с местами хранения и кроватью, которая ограждается раздвижными перегородками от гостиной. В гостиной зоне установлен большой круглый диван для просмотра телевизора и приема гостей.


Дано: Двухкомнатная квартира для инвестирования
Состав семьи: под сдачу в аренду.
Задача: Разбить квартиру на студии для сдачи в аренду. Создать три студии со своими собственными санузлами, полноценной кухней и спальными местами.
Что сделано: В итоге пространство было разбито таким образом, чтобы получилось создать 3 студии, в двух из них были размещены не только кровати, но и дополнительные диваны, что увеличивает привлекательность для арендаторов. Во всех студиях есть свой санузел, кухня с полноценным холодильником и местами хранения. В первой студии добавлено рабочее место в присоединенной лоджии. В третьей студии удалось отделить сальное место от гостиной и получить просторную евро-двушку.


